Продажа коттеджа 244 м2 в закрытом городке, с. Круглик
- Вид предложения: Продажа , Без комиссии
- Тип недвижимости: Дом
- Площадь: 244 m²
- Район: Круглик
- Состояние: Под Отделку
- Спальни: 4
- Ванные комнаты: 3
Описание
Lux-Estate предлагает на продажу качественный, энергоэффективный загородный дом 244 м2 в коттеджном городке закрытого типа, с. Круглик
Коттеджный городок бизнес-класса находится в 4,5 км от границы Киева и 9,5 км от станции метро «Теремки». Закрытая территория, камеры по периметру. В центр столицы вы сможете добраться за 30 минут. В коттеджном городке свой ресторан, салон красоты, детская площадка. Рядом с городком озеро и лес. Территория очень зеленая. Идеальное место для загородной жизни.
Просторный, светлый коттедж с панорамными окнами никого не оставит равнодушным. Продуманная планировка, просторные спальни и большая кухня гостиная.
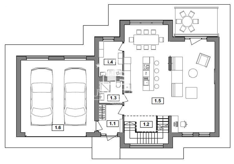
На первом этаже:
– большая кухня-гостиная 65 м²,
– гардеробная комната,
– комната для гостей или спорт-зал
– гостевой с/у
– гараж на 2 автомобиля 45 м²
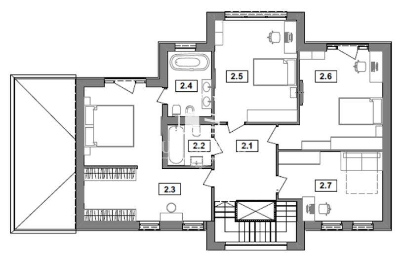
На втором этаже:
– master-bedroom 30 м² с собственным санузлом и гардеробом
– три детские комнаты,
– большой холл
– санузел.





