Продажа стильного коттеджа под Киевом. Буча живописное место
- Вид предложения: Продажа , Без комиссии
- Тип недвижимости: Дом
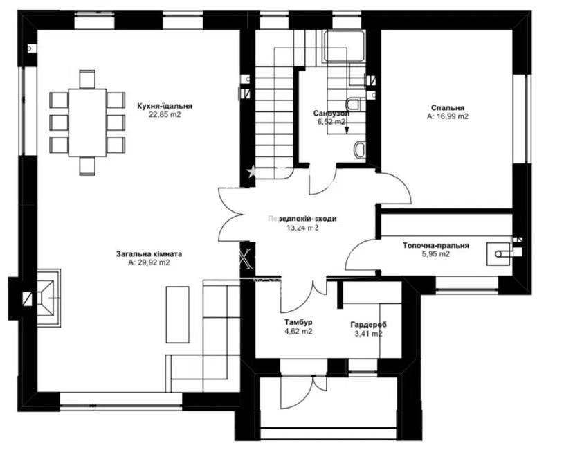
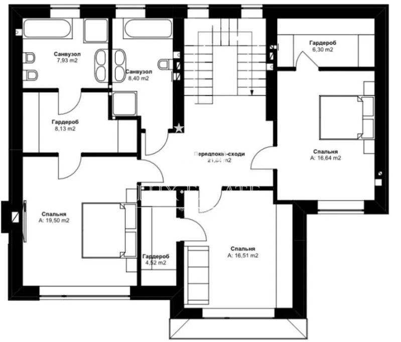
- Площадь: 240 m²
- Размер участка: 8 соток
- Район: Буча
- Состояние: Строительное
- Спальни: 4
- Ванные комнаты: 3
Описание
Предлагается стильный, современный коттедж в г. Буча, что в 10 км езды от Киева по Варшавской трассе.
Экологично чистый регион пригорода столицы.
Вокруг сосновый лес и множество парков.
Дом расположен в центральной части лесной Бучи. Район новой элитной коттеджной застройки.
Площадь 240 м.кв 4 спальные комнаты (1 из них мастер-спальня) в каждой свой гардероб. На первой этаже огромная кухня-гостиная с камином и выходом на террасу.
Панорамные окна, большие комнаты правильной формы, широкая лестница. Планировка создана максимально комфортная и продуманная.
В строительстве использованы премиум материалы, соблюдены все строительные нормы. Дом продается без внутренней отделки с подключенными коммуникациями
На этапе строительства возможна перепланировка внутреннего пространства.
Более детально по телефону.
Звоните!
В радиусе 10 мин езды есть вся необходимая инфраструктура:
– школа “Первая детская академия”
– детский садик
– ресторан “Toscana grill”
– SPA центр “Шкипер”
– гостиница и SPA курорт Grand Admiral Resort & SPA
– кинотеатр, спорт клуб
 
 
 
 
 






